E-COURSE
ON
VULNERABILITY ATLAS
OF INDIA

  From the Desk of Executive Director

 

It is indeed an honour & privilege for me to assume the charge of Executive Director, BMTPC. 

read more

  About Us
 
E-Course on Vulnerability Atlas of India New...Corrigendum Inviting offers for Third Party Quality Assurance for 6 Light House Projects using Alternate/Emerging Technologies NEW... Preventive Measures to be taken to contain the spread of Novel Coronavirus (COVID-19) - Advisory COVID Urban Practices 19 (CUP-19) - PMAY(U) E-Tender for Hiring of Vehicles New... BMTPC's Corporate Brochure
 

 

 

Extensively used for cost-effective housing. Machine available. Being produced by various Building Centre

 

 

Developed by

CBRI, Roorkee

                      

 

 

       

 

Working specification by BMTPC including manufacturing method

 

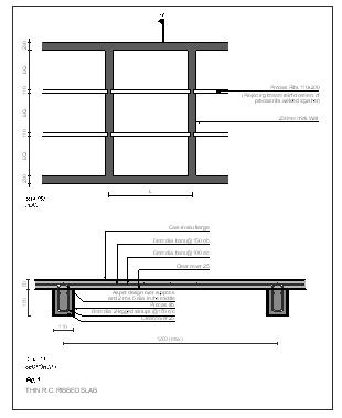
CT 03

 

 

 

 

National standard framed

IS 13990:1994 (SP)

IS 13994:1994

 

 

 

 

 

 

 
Creating Enabling Environment for Affordable Housing for All…… since 1990
 
Home l हमसे संपर्क करें l बीएमटीपीसी मेल l BMTPC l REACH US l Important Links l Feedback l Site Map
Designed & developed by: . All rights reserved by: BMTPC